珠海希尔顿酒店 / 阡上景观

文章正文
发布时间:2024-12-19 20:11

图片


▲酒店鸟瞰

 
山海之间,浮华之外,大隐于市——珠海希尔顿酒店位于珠海香洲区南湾南路,东临前山水道,背靠山岭,与澳门隔海相望。项目面积不大,室外空间环绕建筑布局,如何在极狭小的空间中营造舒适休闲的景观体验,同时又符合场地气质,是本项目的主要挑战。


图片


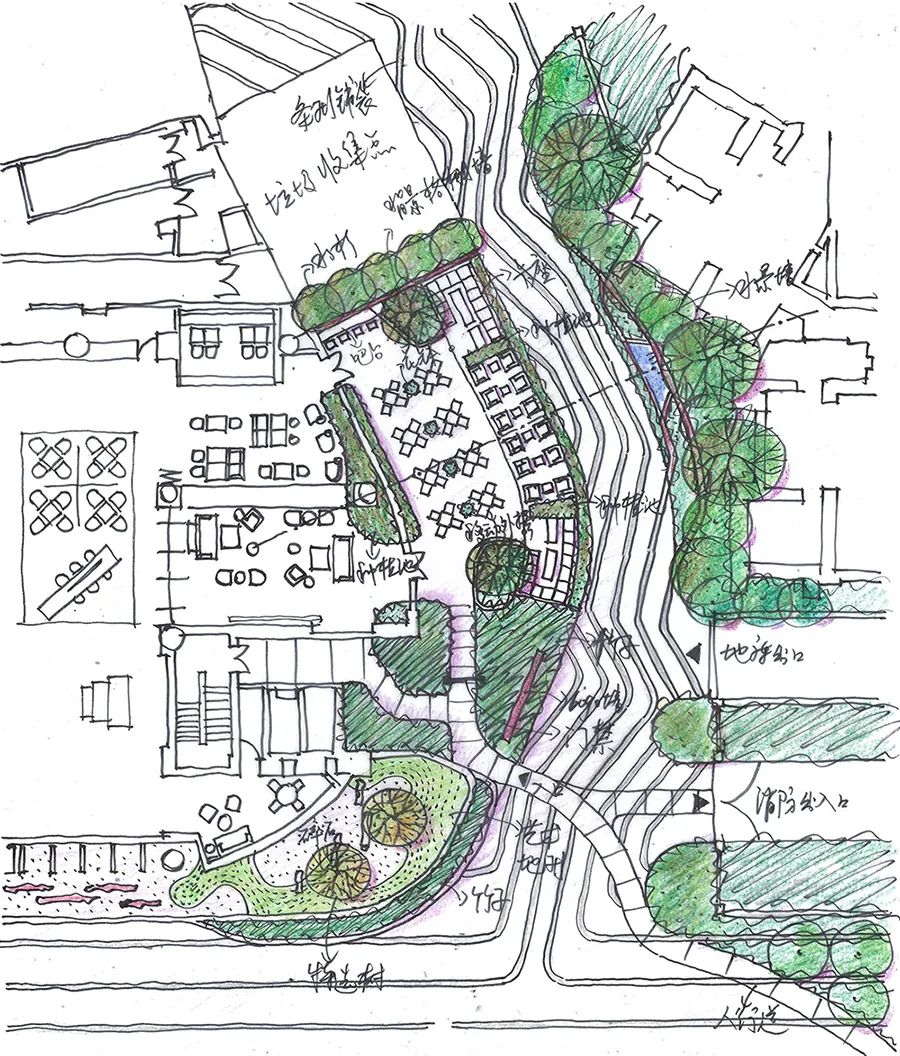
▲平面图


01.场地灵魂   山海之势


  行进在南湾南路,澳门景象清晰可见,前山水道隐约显现。酒店玻璃幕塔楼背靠大山立于场地当中,与周边建筑形成鲜明对比。场地被舒缓的山岭包裹,前海后山的格局十分明确。海之灵动,山之柔美就是此地的灵魂。


图片


▲前海后山的场地格局

图片


▲场地与澳门隔海相望

图片


▲从酒店遥望澳门

02.场地特点   山海之间


  南湾南路是城市快速路,车水马龙,噪音嘈杂。酒店前场空间长约100米,宽约25米,呈狭长之势,是未来车行通道。大堂入口正对澳门塔,是项目一大特色。大堂旁边需要满足停放两辆大巴车和两辆小汽车的需求。场地南侧和西侧通道较窄,只需满足行车需求。北侧靠近酒店一侧为室外餐饮区域,周边被高楼限制,空间压抑。


图片


▲前场鸟瞰

  场地特点已经明确,作为山海之间的酒店空间会是一种什么氛围?是用夸张的手法人为地创造博人眼球的形式,还是顺应场地,从空间体验出发?我们始终认为,任何形式都有时代局限性,在短暂的网红效应后终将过时。唯有空间体验感才有生命力!作为高品质的酒店项目更应从空间出发,打造适合场地、独特、耐久的景观空间。


图片


▲沿水台望大堂入口

图片


▲大堂入口

图片


▲室外休闲花园

03.场地设计   山海之意


首先在形式上抽象山之柔美、水之灵动,铺装、造型、细节都一以贯之,打造如雕塑般一体化的设计语言。


图片


▲一体化的设计语言

图片


▲灵动的布局

图片


▲沿水台望松林山丘

图片


▲入口台地叠水

图片


▲细节做法

 
 城市快速路沿街形象面种植高大乔木,以波浪艺术造型台地处理高差,通过景墙和绿篱的穿插设置,将内外空间隔离开来,也将城市的喧哗隔绝在外,如此,幽静就自然而生。


图片


▲前场水景鸟瞰

图片


▲波浪台地草图

图片


▲波浪台地、景墙、绿篱

图片


▲波浪台地

图片


▲毛石景墙内外


  北侧主入口掩映在密林中,一线叠瀑提示着酒店入口。循溪而入,林荫夹道下水声潺潺。夹道尽端为松林山丘,是场地的视觉焦点。五棵造型松形态各异,做迎客之势。


图片


▲入口林下台地草图

图片


▲入口林下台地

图片


▲一线瀑

图片


▲林荫夹道草图

图片


▲林荫夹道

图片


▲沿水台望酒店大堂

图片


▲松林山丘

图片


▲大堂入口


  到达大堂入口透过丛林依稀可见澳门塔。正对大堂的毛石景墙与周边精细化的材质形成鲜明对比。步入大堂,松林山丘就如框景,与澳门塔形成强烈的景观层次。100米长的前场空间通过节奏的设计被有序地组织起来,避免了一望到底的弊端。


图片


▲从大堂入口望向澳门塔

图片


▲粗糙毛石墙和精致水景形成对比

图片


▲透过松林望向澳门塔

图片


▲酒店大堂

图片


▲室外休闲花园草图

  北侧室外休闲花园用竹林、绿篱、景墙强化边界,正对建筑一侧设置构筑,用更为度假感的PTFE拉膜作为顶界面。一侧叠瀑可望而不可即,既在感受上拉大了空间景深,跌瀑声又烘托了幽静的氛围。


图片


▲室外休闲花园草图

图片


▲竹林

图片


▲室外休闲花园

图片


▲PTFE拉膜构筑

图片


▲跌瀑

图片


▲幽闭的林荫道


  从格局上看,运用对比、欲扬先抑的处理手法,沿建筑一侧设置不同主题的精致花园,希望在极小的空间中打造别有洞天的体验。细节上用更细腻的处理手法,使空间在收放自如中有更微妙的感受。


图片


▲开敞的大堂入口

图片


▲台地细节处理

图片


▲台地细节处理


04.感悟与反思


  不追求流行样式,尽量克制设计欲望,用极少的设计语言(材料、形式等)塑造严谨、统一的空间,这个项目为我们提供了一个很好的探索机会。设计需要经受时间考验,这个项目也会成为我们未来反思自我的样板。感谢业主和酒管方的信任与支持。


项目信息 

项目名称:珠海希尔顿酒店项目地点:广东省珠海市南湾南路2989号业主:珠海熊谷房产发展有限公司酒店管理:希尔顿景观设计:阡上景观设计团队:杜强、王晨、黄逸珩、张震、房仪玮、王姣懿、王锦辉设计时间:2021.6-2021.10室内设计:CCD(香港)施工单位:上海景观建成时间:2023.10面积:4000㎡摄影:南西摄影、黄昆震、杜强摄像:黄昆震剪辑:吴昌权

首页
评论
分享
Top