今日是孩子们的节日。在他们的健康成长中,一个环境良好、寓教于乐的幼儿园环境必不可少。幼儿园的空间尺度以及室内外场景布局对孩子的认知形成均有重大影响,而当面对不同的基地情况,建筑师常会碰见不同的难题:
—— 如何为大进深的方盒子最深处提供了解决采光通风的可能性?
——“究竟什么样的方案,才是真正适合这个场地的?”
—— 在用地紧张之际,如何在保证内部空间的高使用率,并提供最大的户外空间。
—— 独立性和亲密性该如何共存?
—— 在风沙很大的怀来,如何设计出满足全园儿童四季可用的室内活动空间?
—— 如何用积极的态度去回应这块消极场地?
—— 在“乡建”浪潮炙热的当下,乡村学校的建设又该如何进行?
—— 如何在周边高层环绕的压抑环境中为小朋友营造出一片适宜的环境?
—— 在旧厂房改造的幼儿园中,如何产生社会效益,使旧建筑重获新生?
—— 幼儿园是否一定是色彩斑斓的?纯净几何构成是否符合幼儿园的特性?
不论是丰富多彩、鼓励孩子释放天性的幼儿园,亦或是由纯净几何构成的极简房子,带着各自对孩童时期的美好想象与理解,不同的建筑师交出了截然不同的答卷。让我们一起回顾他们各自的解答。项目依于有方网发布时间倒序排列。
01 外在规矩,内在思巧浙江省长兴县回龙山幼儿园
集筑建筑工作室
如何为大进深的方盒子最深处提供解决采光通风的可能性?
该设计利用“两个对角窗、抬起的屋顶、两个错位排列的天窗”等回应气候的被动式形体操作,结合计算机分析,在解决了采光通风的同时提升了空间品质。
其中“两个对角窗”是结合日照模拟分析,将二层方盒子西北角局部降低一层以满足后排单元体日照,如此就形成了屋顶平台和角窗,这个形体操作不仅解决采光通风,并成为空间品质创造的关键组织因素。





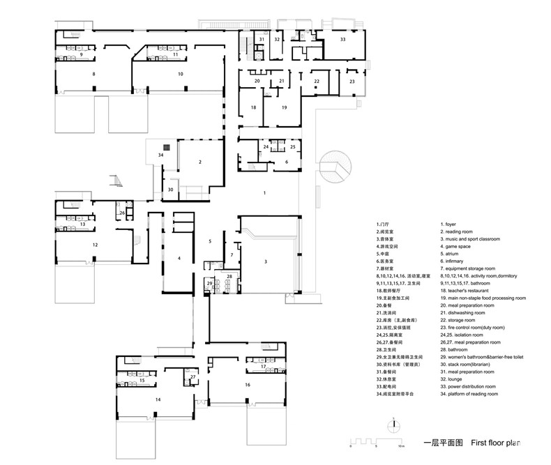
上海万科实验幼儿园
刘宇扬建筑事务所
主持建筑师刘宇扬向团队提问:“究竟什么样的方案,才是真正适合这个场地的?”
在设计的初始阶段,团队内部做了集中式、组团式、庭院式等多类尝试。并在第一轮头脑风暴之后再次审视这些方案, 最终设计的出发点又回到对狭窄场地及现场周边环境的呼应上。将不同的功能空间装载于四组串连的建筑体量之中,并在连接处留出景观平台。结合了弧形屋面的建筑形态宛如孩子们喜欢的托马斯小火车,一节一节地驶入场地之中,并带着孩子们的想象,驶向未来。





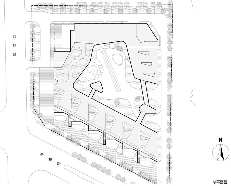
苏州湾实验小学及幼儿园
九城都市
在用地紧张之际,如何保证内部空间的高使用率,并提供最大的户外空间?
建筑整体设计为教学综合体模式,学校内的公共空间,如小学部的校园展示、社团活动、音乐绘画、图书馆、体育馆等区域,都位于校园入口等核心位置并紧临主要交通空间,以空间优先的方式对素质教育做出强调。幼儿园在入口设置了一个非功能性功能空间(中庭):彩色的台阶、通透的采光屋顶、充满童趣的内墙共同组成并吸引小朋友们驻留感受的建筑空间。





三环幼儿园项目试图探讨的,是在这个儿童社区里,独立性和亲密性该如何共存。
独立性与亲密性的概念是他们在此项目中感兴趣的地方,因为这是对个体自由成长的一种解读。普泛建筑选择从具体的功能需求入手,另一方面借助庭院这个江南文脉中的传统元素组织空间,但用一种完全现代的手法来进行操作。
为能够容纳下15个班级并同时营造出较小的空间尺度,他们采用的设计策略像解决几何题那样直接:三个六边形的庭院,分别对应小班、中班、大班三个年级,六条边中五条边对应五个班级单元,剩下的一条边用作共享空间。所有的房间都围绕着这三个六边形庭院来组织。





莱佛士幼儿园及早教中心
空格建筑
在风沙很大的怀来,如何设计出满足全园儿童四季可用的室内活动空间,让幼儿园小朋友可以在建筑中躲避风沙,自由奔跑?
儿童需要通过奔跑、玩耍来释放能量以及认识这个世界。但是在怀来,刮大风的时候,只要张嘴就会吃到一口沙子,连成年人也无法在风中站稳。该设计方案提出了一个超尺度的、满足全园儿童四季可用的室内活动空间。它颠覆了以往走廊的概念,将该走廊拓宽至6米,形成中庭。长度达80多米,连接15个班级活动室。因为这个空间足够长,幼儿园的小朋友不仅可以在里面做普通的游戏,还可以进行羽毛球等活动,甚至还可以骑自行车。小朋友在各个班级之间的活动也可以相互看见,产生视觉、听觉上的联系。





上海金蔷薇幼儿园
曼景建筑
设计起初,建筑师想挑战的是如何用积极的态度去回应这块消极场地。
面对这个封闭的场地,最积极的态度也许就是再造一个理想之地——如同一个盆景,你明知它是微观和局部的,但是却包含了你对这个世界的期许和想象。这个“盆景建筑”由三个部分组成:房子、廊子和院子。
金蔷薇幼儿园给人的第一印象,是一群小房子组成的聚落。幼儿园是儿童除了家庭之外接触最为深入的空间,建筑师不希望它是一个中心化的大房子,而是希望建筑化整为零,让儿童将这个城市中的盆景理解为一个浓缩的世界。孩子们进入的不是一个标准化的房间,而是一个独特的场所和去中心化的空间群落。班级被安排在这九个相对独立的小房子里,希望以此空间的独立性来增强儿童的自我意识。





集贤幼儿园
东意建筑
在“乡建”浪潮炙热的当下,乡村学校的建设更是其重要的部分。
集贤幼儿园——这一在四川雅安的建筑实践,为幼儿们创造出田埂上的乐园,亦折射出建筑师在处理乡建问题时给出的答案。
首先面对场地面积不足的问题。设计的策略是采用集约式布局,为地面更多的幼儿活动空间提供了可能。同时建筑垂直方向的叠加,相对使得幼儿与地面活动场地的距离变得疏远。因此设计在各层提供更多开放、亲切的活动空间,如同一个垂直叠加的聚落,利用房子之间的“空隙”空间,承载幼儿的活动和交往。





昆山集善幼儿园
九城都市
幼儿园基地附近均是高层居住地块,周边高层建筑环绕。此次设计需要解决的问题是如何在这样压抑的环境中为小朋友营造出一片适宜的环境。
该设计团队的策略是在场地内沿周边围合出一个尽量大的三层合院,隔离开附近的高层,就像一只半握的手轻轻拢起,形成一片专属于小朋友的天空。


赫威斯国际幼儿园
CCA悉筑设计
幼儿园改造前的旧建筑,是业主创业之初的厂房。当时业主将它出租给了多个加工作坊,经过多年的使用,建筑已老旧。业主对其有很深的情怀,希望将其改造为一座国际幼儿园,产生社会效益,使旧建筑重获新生。
对旧建筑的整合、组织,以及新建筑与社区的关系都是建筑师首先要考虑的问题。
设计保留了1、2、4、6、8号楼并加固,拆除了3、5、7号楼,使场地更加通透开放,并提供了一些缓冲、疏导的空间,以及尺度更加自由的活动空间。设计通过一条联系轴将独立的功能区块串联,让空间使用更加便捷、舒适,同时营造出更多的空间层次。





吴家场幼儿园
王昀
在北京市海淀区莲花池西路的南侧,莲熙嘉园的小区内,有一所富有几何构成的纯白色幼儿园。
它由方体空间主持建筑师王昀设计,从设计到建成历时6年,是一所拥有9个班规模的幼儿园。建筑师将幼儿园设计成一个纯净的空间体验装置,供未来的小朋友们使用,为初入校园的孩子,准备了数不尽的几何风景。


版权声明:本文为有方空间整合编译,版权归原作者所有。如需转载有方编辑后版本,请后台与有方新媒体中心取得联系。
投稿邮箱:media@archiposition.com